Thiết Kế & Xây Dựng Ngôi Nhà Hoàn Hảo
Ước mơ về một ngôi nhà lý tưởng, đáp ứng mọi nhu cầu của gia đình bạn, sẽ trở thành hiện thực với CÔNG TY TNHH KIẾN TRÚC VÀ XÂY DỰNG SƠN HÀ. Với đội ngũ kiến trúc sư giàu kinh nghiệm, sáng tạo và tâm huyết, chúng tôi cam kết mang đến những giải pháp thiết kế và xây dựng tối ưu, từ biệt thự sang trọng đến nhà phố hiện đại, đặc biệt là thiết kế biệt thự 1 tầng 5 phòng ngủ, đáp ứng mọi phong cách sống và ngân sách của bạn.

Dịch Vụ Thiết Kế & Xây Dựng Nhà Ở Tại Sơn Hà
Sơn Hà Kiến Trúc cung cấp dịch vụ thiết kế và xây dựng nhà ở trọn gói, bao gồm:
- Tư vấn thiết kế: Lắng nghe ý tưởng, phân tích nhu cầu và khảo sát hiện trạng khu đất để đưa ra phương án thiết kế tối ưu, phù hợp với ngân sách và phong thủy.
- Thiết kế kiến trúc: Sáng tạo những mẫu nhà độc đáo, ấn tượng, từ hiện đại đến cổ điển, đáp ứng công năng sử dụng và gu thẩm mỹ riêng của gia chủ.
- Thiết kế nội thất: Bố trí nội thất hài hòa, tiện nghi, sang trọng và ấm cúng, tạo nên không gian sống hoàn hảo
- Thiết kế kết cấu: Đảm bảo tính an toàn và bền vững cho công trình, tuân thủ nghiêm ngặt các quy định xây dựng.
- Thiết kế hệ thống MEP: Thiết kế hệ thống điện, nước, điều hòa không khí, PCCC…hiệu quả và tiết kiệm năng lượng.
- Xin phép xây dựng: Hỗ trợ khách hàng hoàn thiện các thủ tục pháp lý liên quan đến xây dựng.
- Thi công xây dựng: Thi công trọn gói hoặc từng phần theo yêu cầu, cam kết chất lượng và tiến độ.
- Giám sát thi công: Giám sát chặt chẽ quá trình thi công, đảm bảo đúng thiết kế và tiêu chuẩn kỹ thuật.
.jpg)
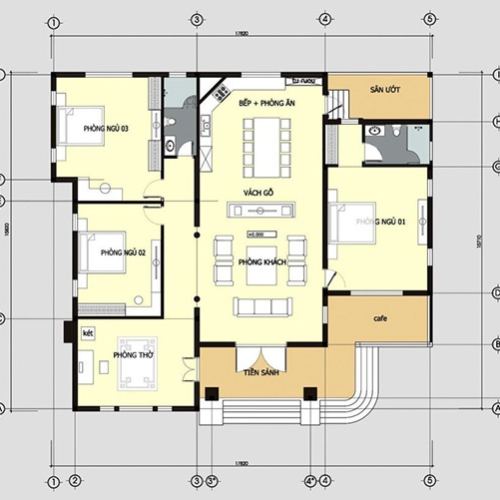
Thiết Kế Biệt Thự 1 Tầng 5 Phòng Ngủ
Sơn Hà Kiến Trúc chuyên thiết kế biệt thự 1 tầng 5 phòng ngủ, đáp ứng nhu cầu của gia đình đông thành viên. Chúng tôi chú trọng đến:
- Bố trí không gian hợp lý: 5 phòng ngủ được bố trí khoa học, đảm bảo tính riêng tư và thoải mái cho từng thành viên.
- Thiết kế mở, gần gũi với thiên nhiên: Kết nối không gian bên trong và bên ngoài, tạo cảm giác rộng rãi và thoáng mát.
- Tích hợp sân vườn, tiểu cảnh: Mang đến không gian sống xanh, thư giãn và gần gũi với thiên nhiên.
- Phong cách thiết kế đa dạng: Từ hiện đại, tối giản đến cổ điển, tân cổ điển, đáp ứng mọi sở thích của gia chủ.

Tại Sao Nên Chọn Sơn Hà Kiến Trúc
- Đội ngũ kiến trúc sư giàu kinh nghiệm, sáng tạo và tận tâm.
- Thiết kế độc đáo, thể hiện cá tính riêng của gia chủ.
- Cam kết chất lượng và tiến độ thi công.
- Chi phí hợp lý, minh bạch
- Tư vấn tận tình, chuyên nghiệp.


Chia sẻ nhận xét về sản phẩm